
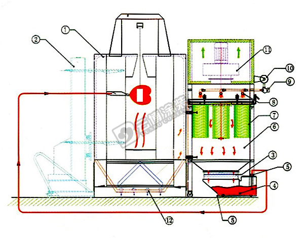
Schematic diagram

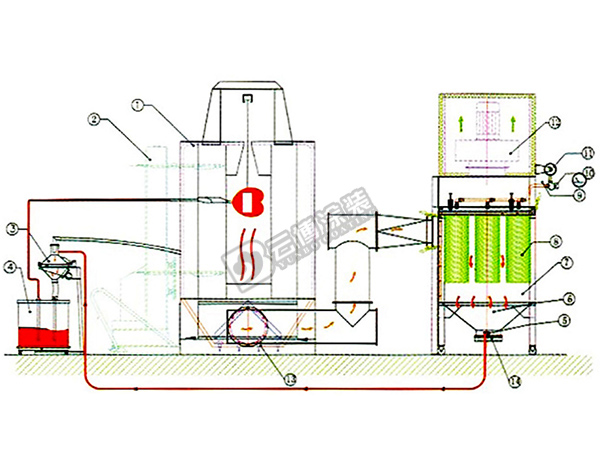
Mixing powder and powder supply system can be integrated in the bottom of the filter
Standby backpack filter recycling spray schematic
Features:
Powder can be 97% recycling, small footprint, less investment;
Application:
Applicable not for color or powder color no more than 3-4 kinds of spray occasions.